fb

byt C.1.02 - objekt C

Prodáno
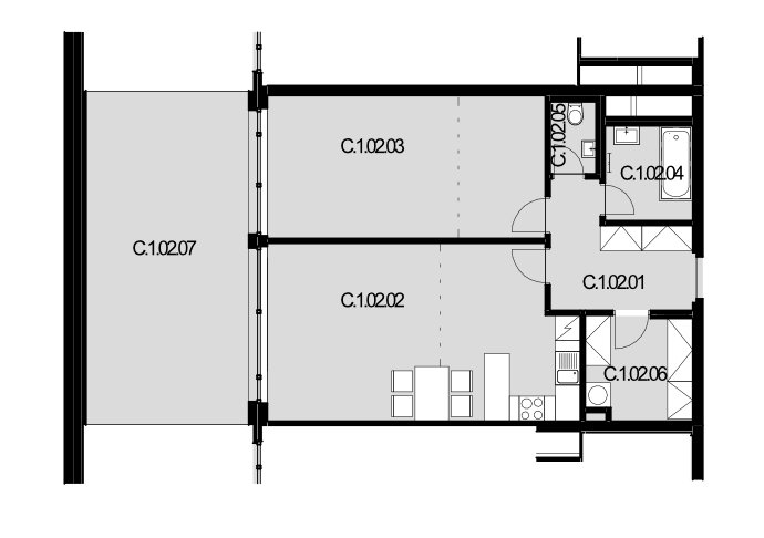
C.1.02

cena vč. DPH Na dotaz

Karta bytu (PDF)

Dispozice

2+kk

Celková plocha

78,8 m2

Podlaží

1. NP

Místnosti + výměry

  • Předsíň 8,3 m2
  • Obytný prostor 30,4 m2
  • Ložnice č. 1 22,7 m2
  • Koupelna 4,8 m2
  • WC 1,9 m2
  • Komora 6,2 m2
  • Terasa 31,1 m2
  • Plocha dle nařízení vlády č. 366/2013 Sb 78,8 m2

Jak se žije v Prokopce?

Prokopka je od základu navržena tak, aby nabídla dokonalé místo pro život uprostřed města. Nabízí tak nejen jedinečnou dostupnost, ale především absolutní komfort pro vysoký standard vašeho bydlení.

Koncept zdravého a energeticky hospodárného bydlení zajišťuje centrální rekuperace vzduchu, okna s izolačními trojsky, ale i architektura využívající světových stran. Spolu s konstrukcí tlumící okolní ruch nabízí opravdový klid vašeho domova.

Garážové stání ke každému bytu

Ke každému bytu je možno přikoupit garážové stání v parkovacím domě, který je součástí areálů. Pohodlně a rychle se tak dostanete suchou nohou ke svému autu. Velký počet stání umožňuje koupi až tři parkovací stání k bytu.

Přehled garážových stání (PDF)

Možnost sklepa k bytu

Byty jsou v převážné většině vybaveny komorami přímo v dispozici. Byty bez komory mají přiřazenou sklepní kóji. Zbývající sklepní koje budou možné přikoupit k jakémukoliv bytu.

Přehled sklepů (PDF)

Máte zájem o byt, prohlídku či bližší informace?

image

Martin Slavík

realitní makléř

+420 604 505 514 info@bytyprokopka.cz