fb

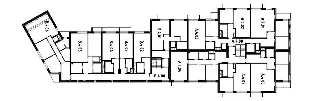
Podlaží 4. NP

Omlouváme se, ale interaktivní výběr bytů je dostupný jen na větších zařízení.

K prodeji
Rezervováno
Prodáno

Máte zájem o byt, prohlídku či bližší informace?

image

Martin Slavík

realitní makléř

+420 604 505 514 info@bytyprokopka.cz