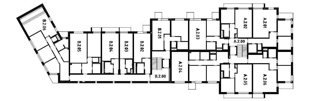
Podlaží 2. NP
K prodeji
Rezervováno
Prodáno
Máte zájem o byt, prohlídku či bližší informace?